- Woonoppervlakte
- Circa 112 m²
- Perceeloppervlakte
- Circa 292 m²
- Bouwjaar
- Gebouwd in 1952
- Aantal kamers
- 5 kamers (4 slaapkamers)
***WONINGWEBSITE***
Deze woning heeft een eigen website. Download de brochure en klik op de link om naar de website te gaan!
KARAKTER, RUIMTE EN COMFORT NABIJ HET CENTRUM VAN MEPPEL
Op zoek naar een woning met karakter, ruimte en volop mogelijkheden? Deze geschakelde 2-onder-1-kapwoning in Meppel biedt het allemaal: een grote, volledig geïsoleerde garage van circa 40 m², vier slaapkamers, een balkon en een zonnige achtertuin. Dankzij de royale voortuin en de ventweg geniet u van veel privacy, terwijl het levendige uitzicht aan de voorzijde een prettige dynamiek geeft.
Een ideale gezinswoning voor wonen, werken of hobby’s, met het centrum, NS-station en uitvalswegen A28/A32 letterlijk om de hoek.
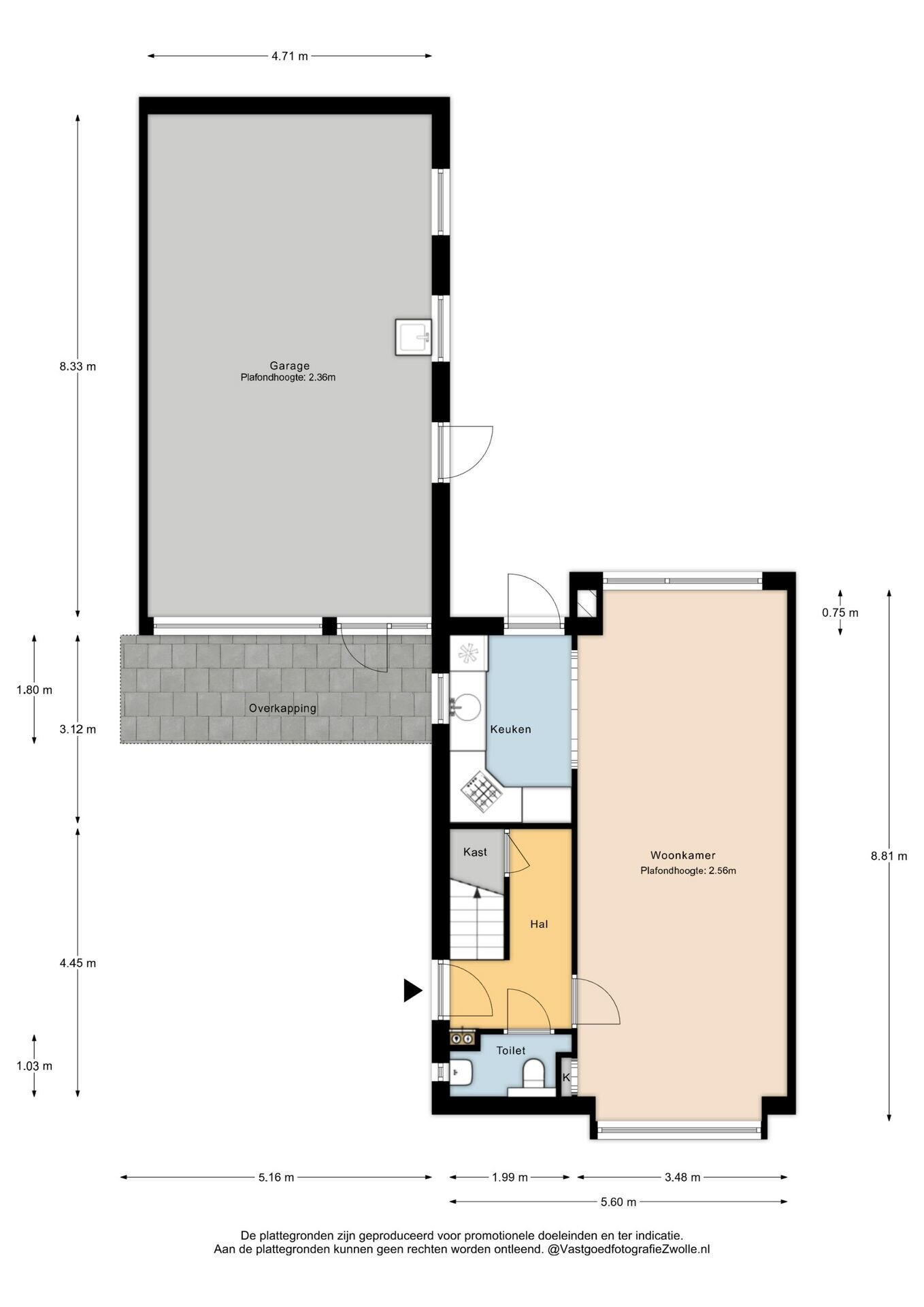
WONEN EN KOKEN
Bij binnenkomst stap je in een ruime hal met toilet, trapopgang en een riante kelderkast – een praktische en verzorgde entree. De woonkamer is licht, ruim en heeft aan de voorzijde een levendig uitzicht. De open keuken sluit direct aan op de woonkamer en de achtertuin, waardoor een heerlijk vloeiend leefconcept ontstaat.
SLAPEN EN BADEN
De eerste verdieping telt twee royale slaapkamers en een moderne badkamer. De hoofdslaapkamer beschikt over een praktische kastenwand en toegang tot het balkon aan de achterzijde. De complete badkamer is uitgerust met een inloopdouche, ligbad, tweepersoons wastafelmeubel en handdoekradiator. Daarnaast zijn er een separaat toilet gecombineerd met een praktische wasruimte.
Op de tweede verdieping bevinden zich nog twee ruime slaapkamers met dakkapellen – ideaal voor kinderen, gasten of een werk-/hobbykamer.
GARAGE EN MOGELIJKHEDEN
De aangebouwde, volledig geïsoleerde garage van circa 40 m² is van absolute meerwaarde Of het nu gaat om het stallen van auto’s, een werkplaats, opslag, hobbyruimte of een kantoor aan huis: hier kan het allemaal. De garage is verwarmd en voorzien van warm- en koudwateraansluitingen én afvoeren, waardoor deze multifunctionele ruimte comfort en functionaliteit perfect combineert.
BUITENLEVEN
De achtertuin op het zuidwesten biedt privacy en volop plek om te genieten van het buitenleven. De royale voortuin en de oprit zorgen voor extra rust en privacy en bieden ruimte voor meerdere auto’s. Een groene, prettige omgeving met levendigheid en comfort gecombineerd.
***HIGHLIGHTS***
- Karakteristieke en ruime geschakelde 2-onder-1-kapwoning
- Nabij centrum, NS-station en uitvalswegen
- Voorzieningen en scholen in de directe omgeving
- Levendig uitzicht aan de voorzijde
- Veel ruimte voor wonen, werken en hobby's
- Grote aangebouwde, geïsoleerde garage met alle voorzieningen
- 4 ruime slaapkamers, tweede verdieping met dakkapellen
- Balkon en achteruin op het zuidwesten
- Kunststof kozijnen met isolatieglas
- Royale voortuin met privacy en oprit voor meerdere auto's Lees de volledige omschrijving
KARAKTER, RUIMTE EN COMFORT NABIJ HET CENTRUM VAN MEPPEL
Overdracht
- Vraagprijs
- € 479.500 k.k.
- Status
- Beschikbaar
- Aanvaarding
- In overleg
Bouw
- Object type
- Eengezinswoning, geschakelde 2-onder-1-kapwoning
- Soort bouw
- Bestaande bouw
- Bouwjaar
- 1952
- Soort dak
- Schilddak bedekt met pannen
Oppervlakte en inhoud
- Woonoppervlakte
- 112 m²
- Perceeloppervlakte
- 292 m²
- Inhoud
- 368 m³
- Externe bergruimte
- 39 m²
- Gebouwgeb. buitenruimte
- 12 m²
Indeling
- Aantal kamers
- 5 kamers (4 slaapkamers)
- Aantal badkamers
- 1 badkamer en 2 aparte toiletten
- Badkamervoorzieningen
- Inloopdouche, ligbad, en wastafelmeubel
- Aantal woonlagen
- 3 woonlagen
- Voorzieningen
- Buitenzonwering, dakraam, glasvezelkabel, natuurlijke ventilatie, en TV kabel
Energie
- Energielabel
- D
- Isolatie
- Dakisolatie, dubbel glas en muurisolatie
- Verwarming
- Cv-ketel
- Warm water
- Cv-ketel
- Cv ketel
- Awb (gas gestookt combiketel uit 2018, eigendom)
Buitenruimte
- Ligging
- Vrij uitzicht
- Balkon / dakterras
- Balkon aanwezig
- Tuin
- Achtertuin en voortuin
- Afmetingen achtertuin
- 36 m² (6,00 meter diep en 6,00 meter breed)
- ligging tuin
- Gelegen op het zuidwesten
Garage
- Soort garage
- Aangebouwde stenen garage
- Capaciteit
- 1 auto
- Voorzieningen
- Elektrische deur, elektra, verwarming en stromend stromend water
- Isolatie
- Volledig geïsoleerd
Parkeergelegenheid
- Soort parkeergelegenheid
- Op eigen terrein
Energieverbruik in Meppel
Energielabel deze woning
Energielabel D
Publicatie energielabel:
Stroomverbruik per jaar
(Gemiddelde twee onder een kap in Meppel)
Gasverbruik per jaar
(Gemiddelde twee onder een kap in Meppel)
* Cijfers zijn afkomstig van het CBS en bedoeld als indicatie en kunnen verschillen voor deze woning
Indicatie hypotheeklasten
Eigen inleg:
Spaargeld / overwaarde
Rente:
Laagste 10-jaars rente
Laagste 10-jaars rente
2,78% - Centraal Beheer - NHG
3,04% - Centraal Beheer - 80%
Laagste 20-jaars rente
3,29% - Centraal Beheer - NHG
3,52% - Centraal Beheer - 80%
Laagste 30-jaars rente
3,41% - Centraal Beheer - NHG
3,7% - Argenta - 80%
Hypotheek:
Bruto maandlasten: € 0 p/m
Netto maandlasten: € 0 p/m
Hoe berekenen we dit?
Het rentepercentage is gebaseerd op de laagste 10 jaars vaste rente voor één hypotheekdeel. De vermelde rente (3.04% zonder NHG) is gecontroleerd op 17-05-2026. Deze berekening is gebaseerd op een annuïteitenhypotheek die volledig wordt afgelost, waarbij de maandlasten gedurende de gehele looptijd gelijk blijven. De werkelijke rente en netto maandlasten kunnen variëren, afhankelijk van uw persoonlijke situatie en de hypotheekverstrekker. Raadpleeg een financieel adviseur voor een nauwkeurige berekening en advies. Aan deze berekening kunnen geen rechten worden ontleend; het dient enkel als indicatie.
Documentatie
Kadastrale kaart
Leefomgeving
Kadaster-kadastrale kaart
Kadaster-eigendomsinformatie ano
Akte van levering ano
WOZ waarderapport
BAG uittreksel
Lijst van zaken
Energielabel
Meetrapport
Plattegronden PDF
Brochure
Bezichtiging
Bod uitbrengen
Waardebepaling
Zoekopdracht
Alles downloaden
Zonnegrenzen bekijken
Inwoners in Meppel
Cijfers voor postcodegebied 7943
- Totaal aantal inwoners
- 7970 inwoners
- Mannen
- 50%
- Vrouwen
- 50%
Inwoners in Meppel
Cijfers voor postcodegebied 7943
- tot 15 jaar
- 15%
- 15 tot 25 jaar
- 13%
- 25 tot 35 jaar
- 20%
- 45 tot 65 jaar
- 33%
- 65 en ouder
- 19%
Huishoudens in Meppel
Cijfers voor postcodegebied 7943
- Eenpersoons zonder kinderen
- 29%
- Meerpersoons zonder kinderen
- 35%
- Huishoudens zonder kinderen
- 64%
Huishoudens in Meppel
Cijfers voor postcodegebied 7943
- Huishoudens met één kind
- 8%
- Huishoudens met meerdere kinderen
- 28%
- Huishoudens met kinderen
- 36%
Woningen in Meppel
Cijfers voor postcodegebied 7943
- Woningen voor 1945
- 6%
- Woningen tussen 1945 en 1965
- 4%
- Woningen tussen 1965 en 1975
- 1%
- Woningen tussen 1975 en 1985
- 25%
- Woningen tussen 1985 en 1995
- 36%
Woningen in Meppel
Cijfers voor postcodegebied 7943
- Woningen tussen 1995 en 2005
- 22%
- Woningen tussen 2005 en 2015
- 6%
- Woningen na 2015
- 1%
- Huurwoningen
- 30%
- Koopwoningen
- 70%
Overige in Meppel
Cijfers voor postcodegebied 7943
- Gemiddelde WOZ waarde
- € 229.000,-
- Personen onder de 65 met uitkering
- 8%
Overige in Meppel
Cijfers voor postcodegebied 7943
- Adressen per km²
- 930
- Stedelijkheid (schaal 1 op 5)
- 40%
Korte feiten over Meppel
Meppel (Drents: Möppelt) is een gemeente en stad in het uiterste zuidwesten van de Nederlandse provincie Drenthe. Op 31 januari 2023 telde de gemeente 35.454 inwoners (bron: CBS), waarvan ruim 31.000 in de stad Meppel zelf wonen. De gemeente kende in de eerste decennia van de eenentwintigste eeuw een bevolkingsgroei met enkele duizenden inwoners. De oppervlakte bedraagt 58 km². Meppel is hiermee qua oppervlak de kleinste gemeente van Drenthe.
Hemme Van Tilburg Makelaars & Taxateurs
Indien u vragen heeft of u wilt een bezichtiging inplannen, dan kunt u gebruik maken van het formulier hiernaast. Er zal daarna op korte termijn contact met u worden opgenomen.
Contact opnemen
Hemme Van Tilburg Makelaars & Taxateurs
Op zoek naar een nieuwe woning of overweegt u uw huis te verkopen? Bij Hemme Van Tilburg Makelaars & Taxateurs begeleiden we u op een persoonlijke en ontspannen manier bij zowel de aan- als verkoop van uw woning. Ook voor huur en verhuur kunt u bij ons terecht. Daarnaast bieden we diverse diensten aan die bijdragen aan zorgeloos en comfortabel wonen.
Met een praktische en betrokken aanpak zetten we ons in voor het beste resultaat, waarbij uw wensen centraal staan. Of u nu een woning zoekt of wilt verkopen – wij staan voor u klaar!
✔ Persoonlijke begeleiding
✔ Jarenlange ervaring
✔ Flexibel en doeltreffend
✔ Snel en accuraat
Landelijke dienstverlening vanuit onze kantoren in Meppel en Amstelveen.
Heeft u een vraag, wilt u een gratis waardebepaling van uw woning of een vrijblijvende afspraak? Neem gerust contact met ons op!
Nieuwste reviews
-
Rolf Roelof
Zeer goede ervaring met dhr Hemme, frisse benadering en uitstekende communicatie. Zeer klantgericht en kennis van de markt en betrokkenheid....
-
Mara Ucelniece
Zeer behulpzaam bij het vinden van een geschikte woning en alle benodigde informatie duidelijk en efficiënt verstrekt. Absoluut een aanrader...
-
Arie Zwolle
Kwalitatieve, prettige en zeer professionele makelaar!